Carved from rainforest and framed by North Shore Mountains, Capilano Golf and Country Club is a West Coast landmark. A private, Stanley Thompson-designed course with treelined fairways, sculpted bunkers, and long views over Vancouver. For members, the experience goes beyond 18 holes. The clubhouse is part of the lifestyle: a place to prepare, reconnect, and enjoy cuisine in a space that feels polished and calm, even during peak service.
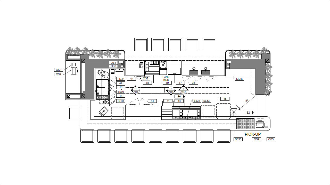
This project focused on the kitchen and bar. The cook line, pass-through, and bar are in full view, so both function and finish had to be precise.

“The kitchen and bar were visible to the customer, so we needed to nail it – function and finish.”
– Dara Nel-McIntosh, Foundry Senior Designer
Project snapshot
- Project: Capilano Golf and Country Club kitchen + bar refresh
- GC partner: Pacific Solutions Contracting
- Kitchen package partner: Foundry Kitchens
- Foundry roles: project management, design, site verification, stainless coordination, delivery sequencing, install support, on-site troubleshooting
- Foundry scope: Design, Equipment Supply, Stainless Supply & Fabrication, Project Management
- Out-of-scope: Final hookups, electrical/plumbing tie-ins
- Outcome: minimal deficiencies at walkthrough, no reported callbacks, and a finished space that the Club felt comfortable sharing publicly.
What made this project high-stakes
The challenge was visibility, detail, and existing conditions.
- Full visibility: the kitchen and bar are part of what members see throughout service
- Old-meets-new constraints: not everything was replaced (including the kitchen ventilation hood), so new work had to blend cleanly
- Schedule discipline was crucial: in an active clubhouse, unexpected delays quickly affect the broader project timeline.
As Foundry Senior Designer Dara Nel-McIntosh described, the solution needed to meet aesthetic and functional expectations while seamlessly blending new and existing elements.

“We didn’t replace the hood… it was important to make the old with the new look like it was meant to be.”
– Andrea Moffat, Project Manager
Key issues
During a routine site verification, the team confirmed the bar’s as-built dimensions and identified a fit constraint affecting the back-bar equipment layout. By that point, several bar items were already on order, including powder-coated coolers and other components.
The bar was originally designed to terminate in a U-shaped counter. Because of the site discrepancy, one back-bar cooler could no longer fit and had to be relocated to the U-shaped area, reducing the available footprint by roughly two-thirds. The challenge was that this wasn’t spare counter space. It was already highly programmed to accommodate rack slides, vented doors, the Vivreau water system, integrated drip trays, a sink, and POS support.
With little room for alteration, Foundry focused on what could be solved quickly: the custom stainless.
The team caught the mismatch during a “site-measure-and-verify” step before stainless components were released. They reworked the custom pieces so the components could still fit, rough-ins stayed where they needed to be, and the bar kept its clean, intentional look without triggering a reorder cycle or delaying the schedule.
“The onsite crew was able to make quick adjustments… without having to make new items.”
– Christian Ferris, Pacific Solutions Contracting
If the discrepancy hadn’t been caught at that point, it likely would have surfaced during install, after fabrication was already complete. That’s when a mismatch turns into redesign, re-fab, and re-finishing, plus knock-on impacts to plumbing, electrical, and sequencing, resulting in weeks lost.
That’s why Foundry verifies site conditions before releasing anything to production. Field dimensions were confirmed first, and stainless steel fabrication was then scheduled, which prevented this from becoming a scheduling issue.

Pacific Solutions Contracting’s perspective
From Pacific Solutions Contracting’s perspective, Foundry’s primary contribution was ensuring the kitchen package remained organized and did not create coordination challenges. Pacific’s Christian Ferris identified three areas that made the biggest difference:
- shop drawing alignment
- delivery sequencing
- on-site troubleshooting
He also pointed to a moment that could have created a delay: “There were a few stainless items that got fabricated incorrectly from a 3rd party stainless team. The onsite crew was able to make quick adjustments… without having to make new items.”
For the GC, this helps maintain project sequencing by reducing remakes, site revisits, and last-minute scrambles.
How Foundry kept the work moving
When issues arose, Foundry teams aligned quickly (design, project management, and site support), avoiding the long delays of external handoffs and formal RFI loops.
As Dara described it, the advantage is speed: “Let’s hop on a call,” get the right people on, and solve it in one working session.
This kept the project on track even as field conditions shifted and quick decisions were needed.

“Shop drawing alignment, delivery sequencing and on-site troubleshooting were a huge help throughout the project.”
– Christian Ferris, Pacific Solutions Contracting
Project outcome
During the walkthrough, the list of deficiencies was short and closed quickly. Andrea Moffat, Project Manager, noted there were “very few deficiencies” and no reported callbacks afterward. The Club also publicly shared images of the space, a clear signal that they were satisfied with the outcome.
What this means for GCs
A kitchen package becomes high-risk when scope lines are fuzzy, shop drawings drift, deliveries land out of sequence, or small fabrication issues turn into remake cycles.
This project clearly shows that when kitchen zone ownership is clear and issues are resolved quickly, coordination risks and schedule threats are minimized.
13 thoughts on “Kitchen Profile: Capilano Golf and Country Club”
Comments are closed.